Działka budowlana Rąblów
Rąblów, lubelskie
- 245 000 zł
- 7 632 m²
- 32,10 zł/m²
Aleksandra Skrai...
Skontaktuj się
Działka budowlana Rąblów
Rąblów, lubelskie
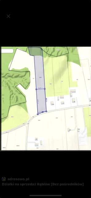
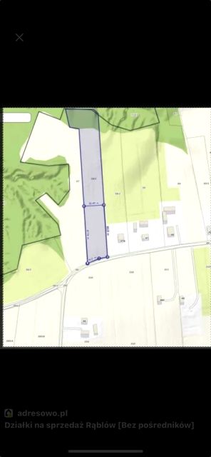
zobacz mapę
zaktualizowane:
29 października 2025
Działka budowlana Rąblów
Zaktualizowane: 29 października 2025
245 000 zł 7 632 m² 32,10 zł/m²
budowlana
droga asfaltowa
prostokąt
woda
Zobacz na mapie
Rodzaj działki:
budowlanaDojazd:
droga asfaltowaKształt:
prostokątMedia:
wodaSzczegóły ogłoszenia
- Typ oferty: działka na sprzedaż
- Cena: 245 000 zł (32,10 zł/m²)
- Działka: budowlana, 7 632 m²
- kształt: prostokąt; teren płaski
- dojazd drogą asfaltową
- Media: woda miejska / wodociąg
- Źródło: biuro nieruchomości: KNC City, zaktualizowane: 29.10.2025
- numer ogłoszenia: 2174/13924/OGS
Lokalizacja
- Adres: Rąblów, Wąwolnica, puławski, lubelskie
Opis nieruchomości
Na sprzedaż działka o powierzchni 7632m2 położona w malowniczej miejscowości Rąblów, w gm. Wąwolnica(powiat puławski, woj. lubelskie)
Cena: 245000zł
Księga wieczysta: TAK
Najważniejsze informacje:
Powierzchnia - 7632m2
Kształt - prostokąt (płaska)
Dojazd - droga asfaltowa
Media -
woda - w działceprąd - w drodzegaz - brakkanalizacja - brakOgrodzenie - brak
Przeznaczenie w miejscowym planie zagospodarowania (...)
Rozwiń opis
513 893...
513 893 288
513 893 288
- Zgłoś błąd lub naruszenie
- Drukuj

